M2 KiTa Baesweiler

RWTH Aachen - Lehrstuhl Healthy Living Spaces (HLS)

Prüfer: Prof. Dr. Marcel Schweiker

Betreuung: M. Sc. Laura Jager

Mit Unterstützung der Städteregion Aachen durch Sara Betz

Hintergrund
Ein Großteil der Gebäude, die im Jahr 2050 in deutschen Städten stehen werden, sind bereits jetzt gebaut. Gleichzeitig werden weitere Räume benötigt. Die Sanierung und Erweiterung bestehender Gebäude wird daher zu einer immer wichtigeren und häufigeren Bauaufgabe, während Neubauaufgaben zurückgehen. Ein großer Sanierungsstau besteht auch bei Kindertagesstätten. Dabei bietet eine Sanierung gleich mehrere Möglichkeiten, gestaltend in den Bestand einzugreifen und ihn zu verbessern. Es ergeben sich häufig Möglichkeiten, die Qualität in den Innenräumen, wie z.B. die Lichtverhältnisse, thermischen Bedingungen oder die Akustik zu verbessern und mit einem gesundheitsfördernden Ansatz voranzutreiben. Schlechte Innenraumluftqualität kann Atemprobleme, Kopfschmerzen, Müdigkeit und eine verminderte kognitive Leistungsfähigkeit verursachen. Schlechte Lichtverhältnisse können die Lernkurve verringern und Auswirkungen auf unseren Tag-/Nacht-Rhythmus haben. Zusätzlich können Anforderungen in Bezug auf die ökologische, ökonomische und soziale Nachhaltigkeit verbessert werden.

Aufgabenstellung
Ziel dieses M2-Entwurfsprojektes ist es, Aspekte des nutzerzentrierten, gesundheitsförderlichen und nachhaltigen Bauens in den Entwurfsprozess mit einfließen zu lassen, um Wohlbefinden, Gesundheit und Leistungsfähigkeit der Kinder und der Erzieher*innen zu fördern. Die Aufgabe besteht darin, am Beispiel einer existierenden KiTa innerhalb der Städteregion Aachen ein Konzept für eine gesundheitsförderliche Sanierung und Erweiterung zu entwickeln und in einen architektonischen Entwurf zu übersetzen. Die Aufgabenstellung wird zusammen mit einer Vertretung der Städteregion Aachen herausgegeben. Neben der Auseinandersetzung mit den spezifischen Bedürfnissen der Nutzenden, d.h. den Kindern, die in einer kritischen Entwicklungsphase sind, sowie den Erzieher*innen, der Analyse der Klimarandbedingungen, dem Zustand des vorhandenen Gebäudes sowie den Änderungswünschen soll nicht nur ein Konzept, sondern ein detaillierter Entwurf für eine Umgestaltung entwickelt werden. Das Ergebnis soll einen Entwurfsbeitrag mit Anspruch an ein überdurchschnittlich gesundheitsförderliches KiTa-Gebäude darstellen.

Outline Projektbeschreibung HLS

Schwerpunkte

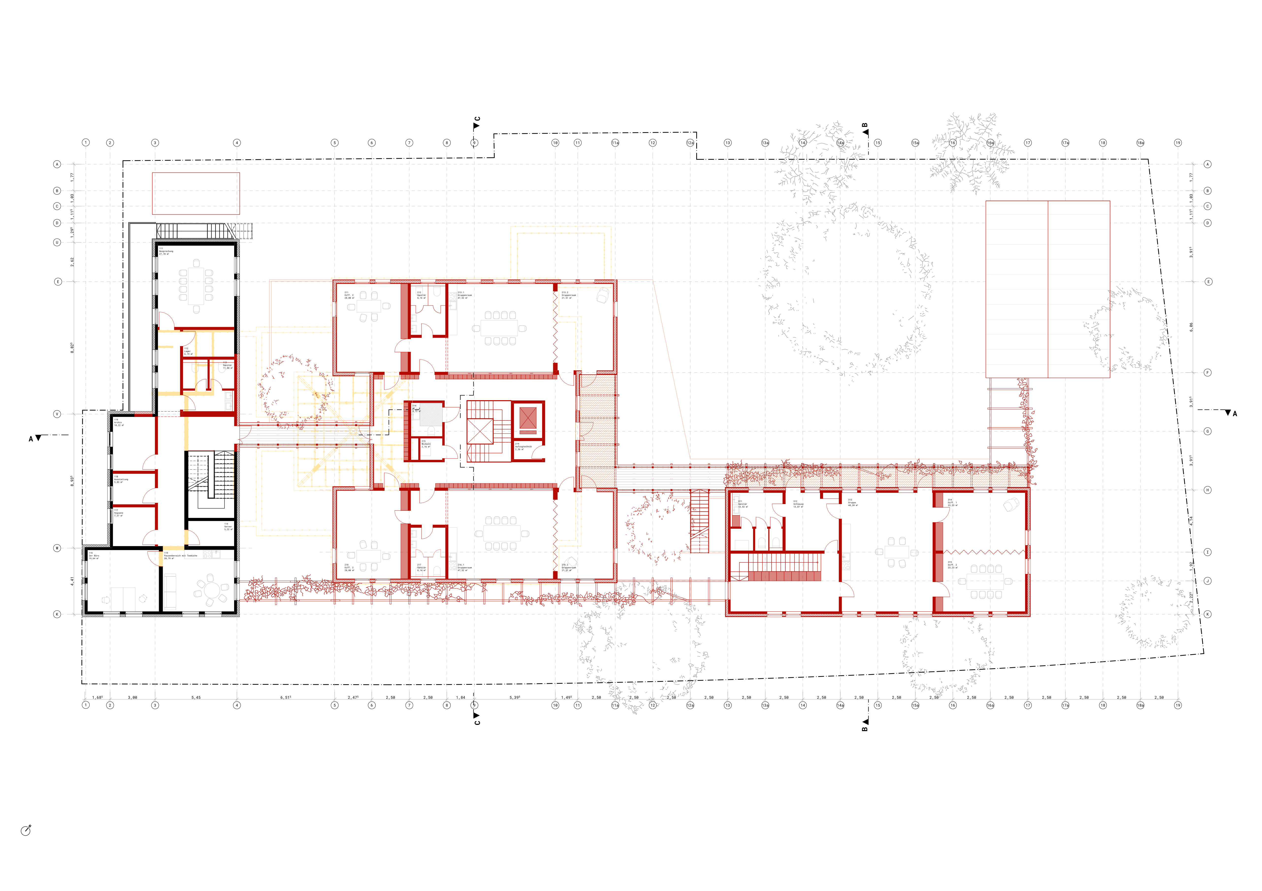
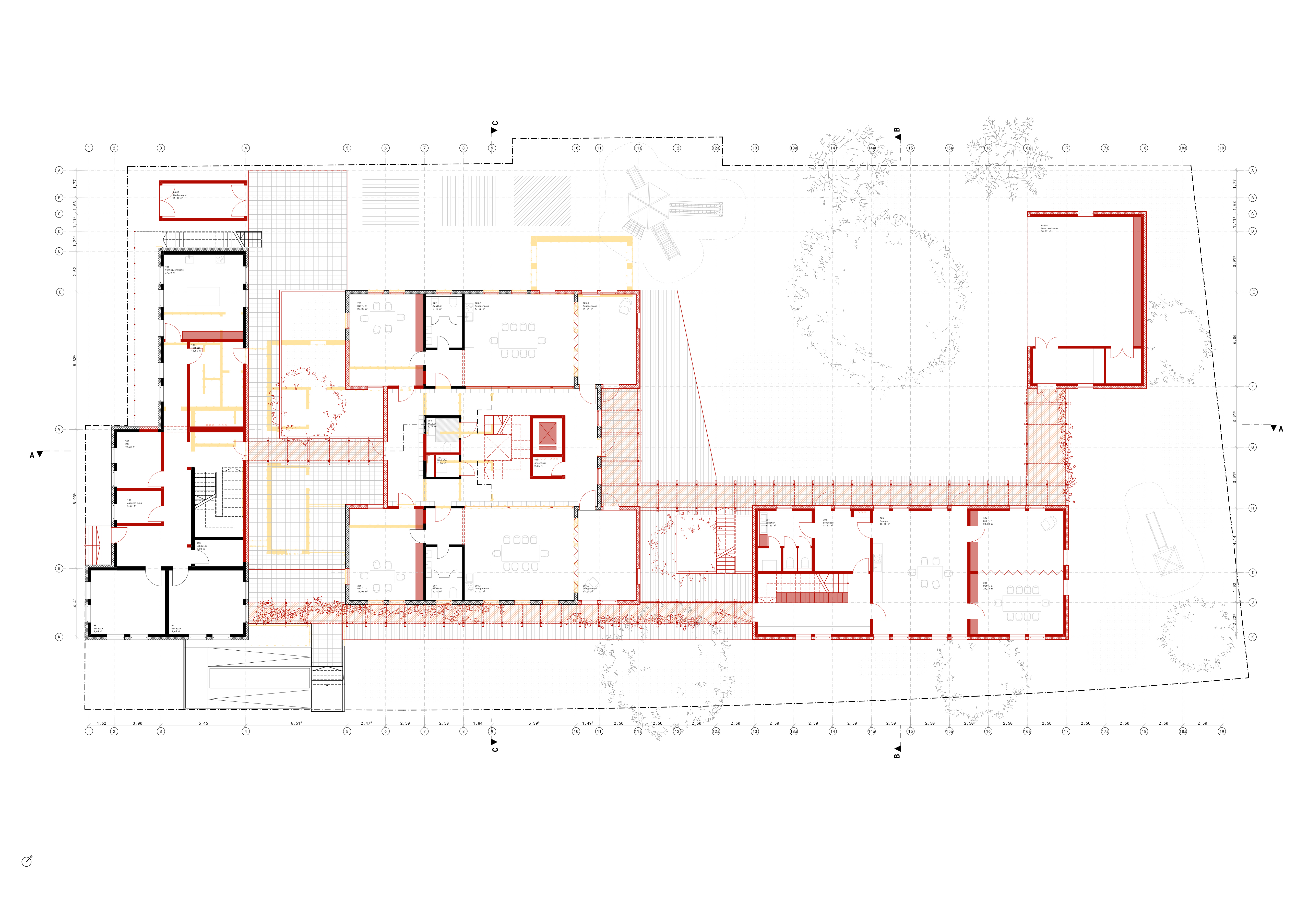
- Umsetzung Raumprogramm: Basis des Entwurfsprogramms stellt das von der Städteregion ausgegebene Raumprogramm dar. Da dieses Programm aber allgemein gefasst ist, gilt es dieses für die KiTa Baesweiler zu rationalisieren. Diese Rationalisierung und die entsprechende Umsetzung ist daher wichtige Stellschraube und stiftet das Fundament für einen erfolgreichen Entwurf.

- Bestands-/Substanzerhalt: Im Hinblick auf die Dualität des Projekttitels „Gesund (|) saniert“ soll vor allem sichergestellt werden, dass das Projekt soweit möglich den Bestand in die Umsetzung inkorporiert. Abrissmaßnahmen nicht vorschnell in den Entwurf einzuarbeiten ist unerlässlich für eine nachhaltige Baukultur. Außerdem kann so sichergestellt werden, dass der Ressourcenaufwand zusätzlich zu ökologischen Aspekten auch ökonomisch im Vergleichzum Neubau wenig intensiv gehalten wird. Der Bestandserhalt darf dabei nicht dazu führen, dass eine Umsetzung des Projekts im bestehenden Rahmen nicht möglich wird.

- Ästhetischer Anspruch + Materialwelten: Es soll beachtet werden, dass das Projekt nicht ähnlich zur Erweiterung 2010 nur unter Kostenkriterien abgewickelt wird, sondern auch ästhetische Aspekte in den Entwurf mit einbezogen werden. Für alle baulichen Maßnahmen sollen Materialien verwendet werden, die im Vergleich zur Bestandssituation nachhaltig sind und sich förderlich aufs Wohlbefinden der Nutzer:innen auswirken. So soll eine nachhaltig förderliche Umgebung in der KiTa entstehen.